The fabLab project is my final degree’s proposal for one such building in the city of A Coruña. Designed and conceived with very strict urban height regulations in mind, the final piece of architecture combines the use of breakthrough technologies and clean geometries to satisfy all of the project requirements.
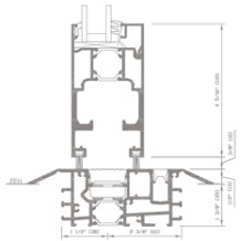
Information about the architecture, structure, construction and installations is available in the following links, which are a selection of the most representative parts of the project.



